Pre-registration for Taha luxury residential projects
www.FardidBanaMandegar.ir
مـدیـریـت و اجـرا

نرم افزارهای معماری و طراحی هوش مصنوعی
AI-powered architecture and design software
نرم افزار Visoid
نرم افزار Veras از شرکت evolvelab
نرم افزار Transcend
نرم افزارTestFit
نرم افزار TestFit
نرم افزار Stable Diffusion از شرکت Stability AI
نرم افزار Skema
نرم افزار Scout از شرکت Asseter.ai
نرم افزار qbiq
نرم افزار PromeAI
نرم افزار NovArch AI
نرم افزار MyArchitectAI
نرم افزار Morphis از شرکت EvolveLAB
نرم افزار mnml.ai
نرم افزار Midjourney
نرم افزار Maket
نرم افزار LookX AI
نرم افزار Laiout
نرم افزار Kolega.Space
نرم افزار Kaedim
نرم افزار Interior AI
نرم افزار Hypar
نرم افزار Hektar
نرم افزار Gaia: مخفف کلمه Generative AI Architect
نرم افزار Finch
نرم افزار DALL•E / بخشی از نرم افزارهای شرکت OpenAI
نرم افزار Coohom
نرم افزار CONIX.AI
نرم افزار Autodesk Forma
نرم افزار ArkoAI
نرم افزار ARK
نرم افزار ARCHITEChTURES
نرم افزار Aino
Adobe Photoshop


توضیحات این متن توسط معماران پروژه ارائه شده است.
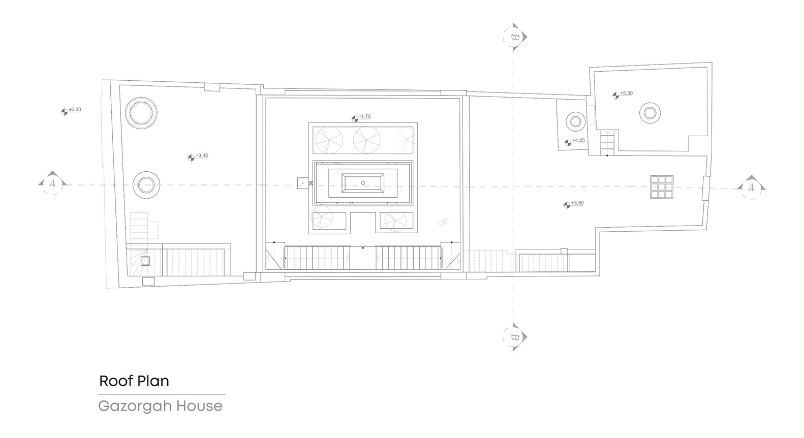
خانه تاریخی گازرگاه که در یکی از کوچه پس کوچههای نیکنام محلۀ گازرگاه یزد قرار دارد، نماد برجسته ای از معماری دوره قاجار و هنر سنتی ایران است. این خانه در طول سال ها، دستخوش دگرگونی های گسترده ای شده و به سه بخش مجزا تبدیل شده است. بخش مرکزی، که ابعاد و اندازۀ دو بخش دیگر را قرینه سازی می کند، نشان دهنده طراحی دقیقی است که با هویت اشرافی محله هماهنگ است و تلاش می کند تا در ظرافت و جزئیات از سازههای اطراف خود پیشی بگیرد.



یکی از جذابترین ویژگیهای این خانه، مزین بودن آن به ستونهای ظریف و مقرنسهای پیچیده ای است که نشانهای از درخشش معماری ایرانی است. این تزئینات با فضاهای طاقدار (*طاق و تُویزه) تکمیل میشود و تأثیر متقابل نور و سایه بر روی طاقهای شاه عباسی (شاخبزی)، جلوۀ بصری مسحورکننده ای ایجاد میکند. چنین ویژگیهایی نه تنها جذابیت زیباییشناختی این ساختمان را افزایش میدهند، بلکه گواهی بر نبوغ طراح اصلی آن نیز هست.



(*طاق و تُویزه: یک ویژگی معماری برای پوشش فضایی وسیع همچون شبستان کلیسا یا مسجد است که مرکب از دندههای قوسی ضربدری یا مورب است. تُویزه عضوی خمیدهشکل یا رگهٔ برجسته است که بر دهانه قوس یا محل تقاطع طاقهای گهوارهای احداث شده و طاق را به بخشهای کوچک تقسیم میکند.)




روند مرمت خانه گازرگاه با احترام بسیاری نسبت به ماهیت تاریخی آن انجام شده است. اضافات مدرن نامتناسب با دقت حذف شده اند تا نشانه هایی از تاریخ غنی خانه را آشکار کنند. یک حرکت نمادین خاص در این کار مرمت، حفظ بخشی از دیوار حیاط خانه است که پیوندی ملموس به گذشته داستانی آن ایجاد می کند.

سقفهای بازسازیشده خانه، که ترکیبی هماهنگ از طرحهای متنوع سنتی را به نمایش میگذارد، به عنوان شاهدی بر وجود مهارت استثنایی در احیای خانه گازرگاه است. این توجه دقیق به جزئیات، نه تنها از اهمیت فرهنگی و تاریخی خانه محافظت می کند، بلکه شکوه بصری آن را نیز بیشتر می کند.

امروزه خانه گازرگاه، به عنوان یک اقامتگاه زیست بومی عمل می کند و از اهمیت تاریخی خود فراتر رفته است. از بازدیدکنندگان دعوت می شود تا خود را در فرهنگ، سبک زندگی و سنت های ایرانی غرق کرده و از نزدیک جذابیت جاودانه این گنجینه معماری را تجربه کنند. خانه گازرگاه با پذیرفتن شخصیت اصیل خود، چشم اندازی تازه به میراث ماندگار معماری ایرانی ارائه می دهد.




























مطالب مرتبط
افراد دارای مهارت در این زمینه
Skilled professional in this field
در صورتی که در این زمینه تخصص یا مهارتی دارید، پس از ثبت نام در سایت و تکمیل فرم مشخصات شخصی ، پروفایل خود را به لیست زیر اضافه نمایید .
If you have expertise or skills in this field, please register on the website, complete your personal information form, and add your profile to the list below
عالی بود