Pre-registration for Taha luxury residential projects
www.FardidBanaMandegar.ir
مـدیـریـت و اجـرا

نرم افزارهای معماری و طراحی هوش مصنوعی
AI-powered architecture and design software
نرم افزار Visoid
نرم افزار Veras از شرکت evolvelab
نرم افزار Transcend
نرم افزارTestFit
نرم افزار TestFit
نرم افزار Stable Diffusion از شرکت Stability AI
نرم افزار Skema
نرم افزار Scout از شرکت Asseter.ai
نرم افزار qbiq
نرم افزار PromeAI
نرم افزار NovArch AI
نرم افزار MyArchitectAI
نرم افزار Morphis از شرکت EvolveLAB
نرم افزار mnml.ai
نرم افزار Midjourney
نرم افزار Maket
نرم افزار LookX AI
نرم افزار Laiout
نرم افزار Kolega.Space
نرم افزار Kaedim
نرم افزار Interior AI
نرم افزار Hypar
نرم افزار Hektar
نرم افزار Gaia: مخفف کلمه Generative AI Architect
نرم افزار Finch
نرم افزار DALL•E / بخشی از نرم افزارهای شرکت OpenAI
نرم افزار Coohom
نرم افزار CONIX.AI
نرم افزار Autodesk Forma
نرم افزار ArkoAI
نرم افزار ARK
نرم افزار ARCHITEChTURES
نرم افزار Aino
Adobe Photoshop

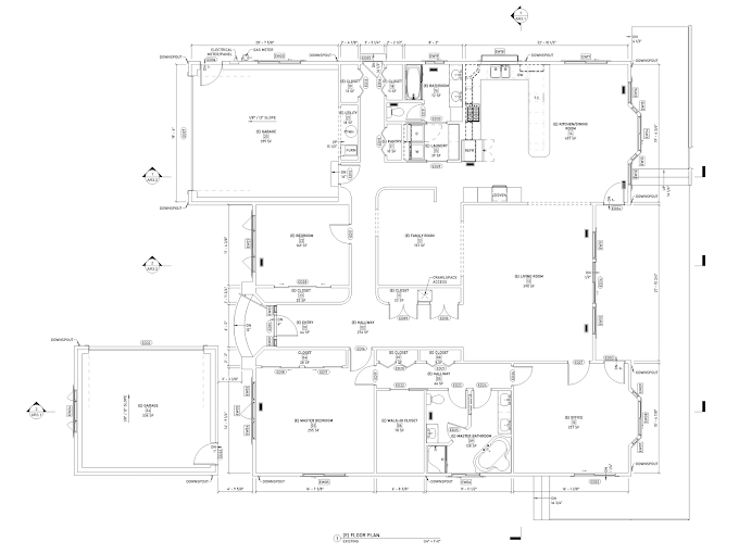
تصور کنید در حال بازسازی یک ساختمان هستید و متوجه میشوید که پلانها، محل لولهکشی یا سقفها با نقشههای اولیه مطابقت ندارند. اینجاست که **نقشههای اجراشده** به کار میآیند. این اسناد دقیق، وضعیت واقعی ساختمان پس از ساخت را نشان میدهند، نه فقط آنچه در نقشههای اولیه برنامهریزی شده بود. این نقشهها تمام تغییرات انجامشده در طول ساخت، بهروزرسانیها و اصلاحات بازسازی، و همچنین ابعاد دقیق را ثبت میکنند.
چه در حال برنامهریزی برای بازسازی باشید، چه مدیریت یک ملک یا خرید املاک، درک نقشههای اجراشده میتواند در وقت و هزینه شما صرفهجویی کرده و از سردردهای بعدی جلوگیری کند. در این مقاله، به زبان ساده توضیح میدهیم که نقشههای اجراشده چیستند، چرا اهمیت دارند، چه کسانی به آنها نیاز دارند و چگونه تهیه میشوند.

نقشههای اجراشده چیستند؟
نقشههای اجراشده، شرایط فعلی سازه را همانگونه که ساخته شده نشان میدهند. این نقشهها ابعاد، محل دیوارها، مصالح استفادهشده و سایر جزئیات فنی را مستند میکنند. خدمات تهیه نقشه اجراشده شامل ایجاد این پلانها با استفاده از آخرین تغییرات و ابعاد حاصل از مطالعات میدانی است تا یک سند دقیق از ساختمان ارائه شود.
بهجای حدسزدن آنچه پشت یک دیوار یا زیر کفپوش است، هرکس که روی ساختمان کار میکند (سازنده، معمار یا مدیر تاسیسات) میتواند به نقشههای اجراشده مراجعه کند تا پاسخهای قابلاعتمادی دریافت کند. این امر، این نقشهها را برای بازسازی، تعمیرات، بازرسیها یا فروش ملک در آینده ضروری میسازد.
نقشههای اجراشده خوب باید شفاف، دقیق و جزئینگر باشند. از این نقشهها میتوان برای اهداف مختلفی استفاده کرد:
- نگهداری ساختمان
- هماهنگی مراحل مختلف ساختوساز
- مستندسازی طرح اولیه و تغییرات انجامشده در طول فرآیند ساخت
چه اطلاعاتی در نقشههای اجراشده وجود دارد؟
- موقعیت و ابعاد نهایی:
این نقشهها اندازه و مکان دقیق دیوارها، درها و پنجرهها را نشان میدهند. اگر دیوارها چند سانتیمتر جابهجا شده یا ابعاد درها تغییر کرده، این اصلاحات ثبت میشوند. ارتفاع سقف و کفپوشها نیز مطابق آنچه در محل اجرا شده، ثبت میگردد.
- تاسیسات مکانیکی، الکتریکی و لولهکشی (MEP):
نقشههای اجراشده محل پریزها، چراغها، تابلوهای کنترل و شیرهای قطعکننده را مشخص میکنند. این اطلاعات به تعمیرات یا ارتقای سیستمها بدون آسیبزدن به ساختمان کمک میکند. همچنین ممکن است موقعیت داکتها و لولهها نیز در صورت درخواست ثبت شود.
- تغییرات مصالح:
ثبت مصالح استفادهشده برای نگهداری، بهبودها و طراحی آینده اهمیت دارد. این نقشهها به خرید مصالح، هماهنگی رنگها و طراحی کمک میکنند.
- کارهای سایت و جزئیات خارجی:
این نقشهها وضعیت نهایی عناصر خارجی مانند پیادهروها، پارکینگ، حیاط و محوطهسازی را نشان میدهند. همچنین تغییرات در شیببندی و زهکشی یا جابهجایی لولههای فاضلاب نیز در آنها ثبت میشود.
- تغییرات طراحی و اصلاحات میدانی:
گاهی سازندگان در حین اجرا روش بهتری برای انجام کارها پیدا میکنند. مثلاً ممکن است یک دیوار برای دسترسی بهتر جابهجا شده یا پلهها بازطراحی شده باشند. نقشههای اجراشده این تغییرات را ثبت میکنند تا در آینده کسی با سورپرایزهای پشت دیوارها یا زیر زمین مواجه نشود!
تفاوت نقشههای اجراشده با نقشههای workshop (Shop Drawings)
نقشههای اجراشده as-build :
وضعیت واقعی ساختمان پس از ساخت را نشان میدهند و تمام تغییرات از طرح اولیه تا نهایی را شامل میشوند.
نقشههای workshop:
در مراحل اولیه پروژه تهیه میشوند و جزئیات ساخت، نصب یا مونتاژ قطعات (مانند تیرهای فلزی، داکتها یا کابینتهای سفارشی) را نشان میدهند.
تفاوت کلیدی:
- نقشههای اجراشده As-Built واقعیت ساختهشده را ثبت میکنند.
- نقشههای workshop مربوط به چگونگی ساخت قطعات قبل از نصب هستند.
استفاده از نسخه اشتباه این نقشهها میتواند منجر به خطا، تاخیر و هزینههای اضافی شود.
چه کسانی از نقشههای اجراشده استفاده میکنند؟
.webp)
> سازندگان و پیمانکاران:
برای بررسی پروژههای تکمیلشده یا قبل از شروع بازسازی، این نقشهها به درک دقیق سازه کمک میکنند.
> معماران و مهندسان:
برای طراحی تغییرات یا ارتقای سیستمها، وجود نقشههای دقیق اجراشده ضروری است. یک دیوار یا جزئیات گمشده میتواند کل پروژه را مختل کند!
> مالکان و مدیران تاسیسات:
اگر صاحب یا مسئول نگهداری یک ساختمان هستید، این نقشهها مانند یک **راهنمای کامل** عمل میکنند. پیدا کردن شیر قطعکننده، جابهجایی دیوار یا رفع مشکل برق، همه با این نقشهها آسانتر میشود.
> مشاوران املاک و ارزیابان:
این نقشهها فرآیند فروش را تسریع میکنند، زیرا ثابت میکنند ساختمان مطابق ادعاها ساخته شده است. خریداران به مستندات شفاف اعتماد بیشتری دارند.
> بازرسان و شهرداری:
ادارات شهر اغلب برای صدور مجوز یا بازرسیها به این نقشهها نیاز دارند. اگر مدارک شما با وضعیت واقعی ساختمان مطابقت نداشته باشد، پروسه اداری طولانیتر و پرهزینهتر میشود.
جمعبندی: چرا نقشههای اجراشده اهمیت دارند؟
دقت این نقشهها هماهنگی بین مراحل ساخت، طراحی، اخذ مجوزها و موارد دیگر را تسهیل میکند. بدون آنها، هرگونه تغییر یا تعمیرات میتواند به یک چالش پرهزینه تبدیل شود.
.webp)


مطالب مرتبط
افراد دارای مهارت در این زمینه
Skilled professional in this field
در صورتی که در این زمینه تخصص یا مهارتی دارید، پس از ثبت نام در سایت و تکمیل فرم مشخصات شخصی ، پروفایل خود را به لیست زیر اضافه نمایید .
If you have expertise or skills in this field, please register on the website, complete your personal information form, and add your profile to the list below